Sort Option
- Po tipu
- Lokaciji
- Ceni
- Featured
Grid
List






Izpostavljeno
GROSUPLJE, CENTER
Slovenija
7Picture(s)
93m²
Velikost 93 m2, prostor za storitve, zgrajen l. 2000, 1. nad., Popolnoma opremljen poslovni prostor v poslovnem objektu, ki se nahaja v samem centru Grosuplja. Primerno za pisarne, storitveno dejavnost, trgovino ipd, oddamo. Cena: 890 EUR/mesec
Poslovni prostor sestoji iz: sprejemne pisarne, 4 večjih pisarn, WC ter čajne kuhinje.
Prostor se nahaja v lepem, urejenem, poslovnem objektu.
890€ Mesečno
IVANČNA GORICA
Slovenija
18Picture(s)
339m²
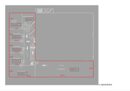
Velikost 339 m2, kombiniran prostor, zgrajen l. 1970, adaptiran l. 2022, 1. nad., Poslovni prostor v dveh nadstropjih v industrijski stavbi v centru Ivančne Gorice, oddamo. Cena: 7 EUR/m2/mesec
1. nadstropje: 158 m2
2. nadstropje: 181 m2
Razporeditev prostorov/tloris priložen med slikami.
Možnost najema tudi pritličja.
2.400€ Mesečno
















